3
2
1810
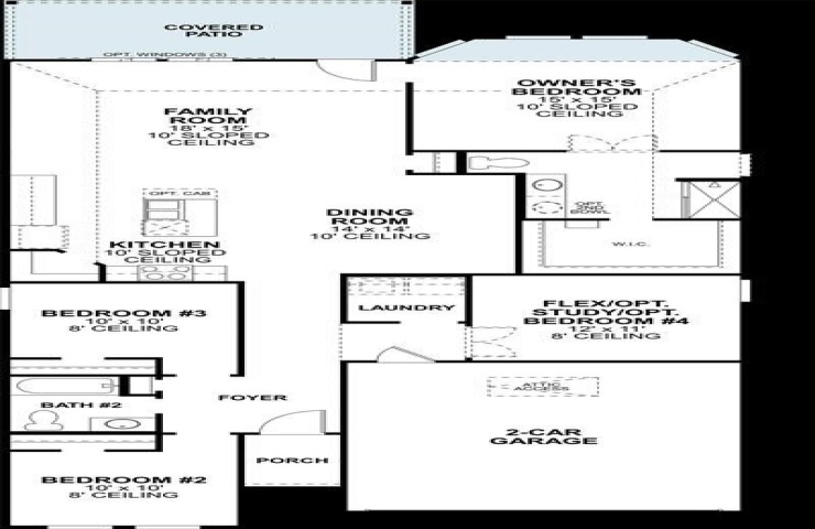
Property Description: Built by MI Homes! Welcome home to the Freestone, a 1 story floorplan that features 3 to 4 bedrooms, 2 bathrooms, and a 2 car garage. As you enter this home, you are greeted by a spacious foyer that gives direct access to your secondary bedrooms and full bathroom on one side and your laundry room with a flex space on the other side. The flex space can be upgraded to a fourth bedroom or it can remain as an open space. Opportunities are endless when left as an open space. You are free to transform it into a home office, a play room for the kids, or an additional living room. In the main living area of the home you’ll find the family room, kitchen, and dining room. The kitchen offers a large island that overlooks the open concept living space. This home features soaring ceilings throughout and large windows to allow the natural light to shine through. The owner’s suite is nestled at the back of the home and offers a spacious bedroom and large private bathroom with a generously sized walk in closet. All MI Homes’ Smart Series plans offer professionally pre designed packages, allowing you to make this space your own by simply selecting the package that suits you best. You will love the stylish design and value that comes with your new Smart Series MI Home. Schedule a visit today!