3
2
1833
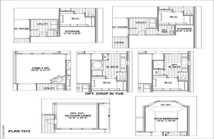
Property Description: You will fall in love with this adorable 1-story home with 3 bedrooms and 2 full baths. Located on either side of the extended foyer are two secondary bedrooms with a full bath and the garage with additional space that can be used for storage or as a workout area. Floor-to-ceiling windows across the back of the home provide plenty of natural light and provide a view of the covered outdoor living space. The open concept plan flows directly into the kitchen, which features a walk-in pantry and a large center island, perfect for entertaining. Also situated at the back of the home for added privacy, the main bedroom retreat boasts vaulted ceilings, an ensuite bathroom with soaking tub and walk-in shower, as well as a large walk-in closet.