3
2
2010
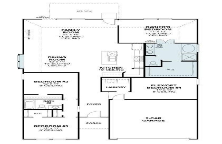
Property Description: Built by M-I Homes. Discover this stunning new construction home located at 13177 Zion Drive in Providence Village. Built by M-I Homes, this thoughtfully designed 3-bedroom, 2-bathroom home offers an open-concept heart of the home, elevated finishes, and a practical layout you're sure to adore. The functional floorplan maximizes space efficiency while maintaining an open, airy feel. Each room is designed with comfort and practicality in mind, creating a perfect foundation for your new home. The open-concept living area creates an inviting atmosphere perfect for daily living and entertaining. Upgraded wood-look tile flooring guides you through the main living spaces. Sloped ceilings, a stunning kitchen island and a corner pantry are just a few of the highlights in this space. White quartz countertops accentuate the center island and pair beautifully with the stylish tile backsplash. An abundance of white-painted cabinetry and stainless steel appliances further equip this space. Each bedroom offers comfortable proportions, and the bathrooms feature contemporary fixtures and finishes. The tucked-away owner's suite with its deluxe en-suite bathroom and walk-in closet is sure to impress. Not only can you enjoy the daily convenience of the walk-in shower, but you can also indulge in the luxury of a peaceful soaking tub, all accentuated with stylish, marble-inspired tile. The Providence Village neighborhood offers an excellent location with convenient access to local parks and recreational opportunities. Residents appreciate the area's family-friendly atmosphere and well-maintained surroundings, plus fantastic amenities, walking trails, and peaceful surroundings right within the community. Experience the benefits of new construction with this new home that combines quality craftsmanship with thoughtful design in a desirable neighborhood setting. Schedule your visit today!