3
2
1934
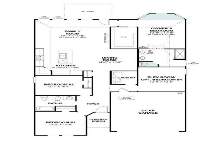
Property Description: Built by M-I Homes. Discover this stunning new construction home at 13120 Zion Drive in Providence Village, TX, built by M-I Homes. This thoughtfully designed, single-story home features open-concept living space that seamlessly connects the kitchen, dining, and family areas for daily life and entertaining. The upgraded Platinum Design Package brings this space to life with elegant design finishes, further underscoring the quality and attention to detail of this new home. Key Features: • 3 bedrooms including owner's bedroom in its own private corner • 2 full bathrooms with quality fixtures and finishes including marble-inspired wall tile • Open-concept floorplan creating seamless flow between main areas • New construction with quality craftsmanship throughout Neighborhood & Location Benefits: • Situated in a desirable Providence Village, TX neighborhood with fantastic amenities • Convenient access to parks and outdoor recreation • Family-friendly community with welcoming atmosphere The home's layout emphasizes functionality and comfort, with each space thoughtfully planned to maximize usability. The open-concept design creates an inviting atmosphere for both relaxation and entertaining guests. Every detail reflects M-I Homes' commitment to quality construction and contemporary design. Upgraded wood-look tile flooring guides you through the main spaces, while the kitchen is a standout feature, outfitted with quartz countertops, white-painted cabinetry, stainless steel appliances, and a large center island with pendant lights. This new construction home represents an excellent opportunity to be the first owner of a well-crafted home in Providence Village, combining practical living spaces with modern features in a highly desirable North Texas community. Schedule your visit today!