4
4
3686
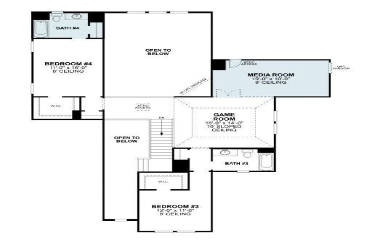
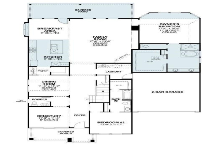
Property Description: Built by M-I Homes. Discover this stunning two-story new construction home at 3621 Henry Crossing, a thoughtfully designed, new-construction home with 4 bedrooms, 4.5 bathrooms, and a 2-car garage. Situated on a spacious corner homesite across the street from a charming community park, this new home is outfitted with elegant finishes, an impressive layout, and superior quality. The open-concept design connects the kitchen, dining, and family areas, creating an inviting atmosphere perfect for both casual living and entertaining guests. Soaring 2-story ceilings enhance the main living area and large windows draw in an abundance of natural light. The main-floor owner's suite provides comfort and privacy, and features a bay window plus an upgraded deluxe owner's bathroom layout. Enjoy the luxury of both a walk-in shower and a relaxing soaking tub, all finished with modern tile selections. A large walk-in closet will solve all of your storage needs. The second floor offers additional bedrooms and bathrooms, as well as a game room and a media room, giving you and your family ample flexible living areas. Situated in a desirable community of Lilyana, residents enjoy easy access to parks, green spaces, and recreational amenities. The home's thoughtful floorplan maximizes functionality while allowing for natural light and a bright, welcoming feel throughout. With its balance of style, comfort, and practicality, this new construction home offers an exceptional opportunity to enjoy modern living in one of North Texas’s most sought-after communities. Schedule your visit today!