4
3
2106
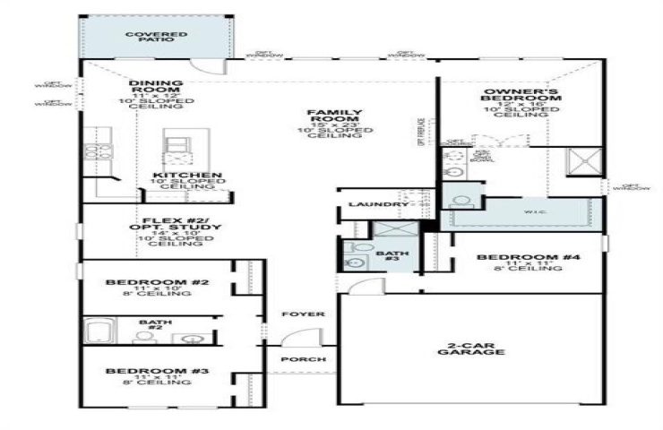
Property Description: Beautiful designed,Pizarro, model home plan crafted by M-I Homes on homesite backing to greenspace. This home is 1 story of dynamic spaces including 4 bedrooms, 3 bathrooms and a flex room. The family room is spacious and allows for any kind of entertainment or family gathering. The gourmet kitchen is positioned to look into the family and dining rooms inviting conversation and fellowship. This home has amazing amenities including quartz countertops in the kitchen, wood look tile throughout the common spaces, faux blinds and much more. This home has Whole Home Certified Features including Tankless Hot Water Heater, and 16 SEER AC. About Sanderos: As one of our new homes for sale in Fort Worth, TX, 7720 Sapwood Drive, is located in Sanderos, a boutique community which offers an affordable way to live in proximity to downtown Forth Worth. Sanderos also benefits from being situated in the prestigious Eagle Mountain-Saginaw ISD. Schedule your visit today!