3
2
2464
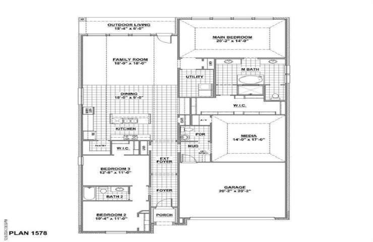
Property Description: 1 story home with 3 bedrooms, 2 full baths, 1 half bath, dining area, media room, outdoor living area and 2-car garage! This charming and versatile one-story home will take your breath away! Adjacent to the extended foyer lay two secondary bedrooms with a shared full-size bathroom. Across the hall, you are greeted by the centrally located media room that is perfect for family movie night. The chef's kitchen features a walk-in pantry and center island which overlooks the spacious dining area. The family room gives you access to the outdoor living area. The secluded main bedroom is the perfect retreat. In addition to the abundance of windows bringing in natural light, you will love the amazing en-suite bathroom featuring dual vanities, garden tub, spacious shower and a huge walk-in closet. This home also boasts a convenient mud room with access to the garage.