4
3
3257
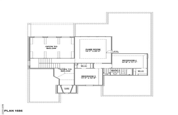
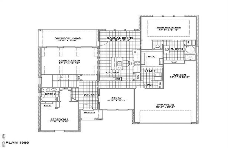
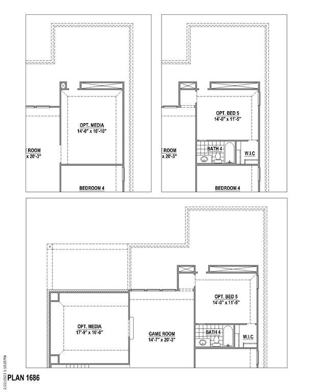
Property Description: Beautiful model home floor plan with upgraded brick and stone, 4 bedrooms, 3 full baths, study in the front of the home, game room, media room, covered outdoor living space and a 3-car tandem garage making this the perfect family home. The great room is open to the second floor with a lovely fireplace and numerous windows to let in the natural light. The main suite boasts a vaulted ceiling and a bay window. The main bath has an amazing soaker tub with his and her vanities that will become your private oasis. The study has glass French doors. This gourmet kitchen is sure to please, with upgraded quartz counter tops, upgraded built-in appliances, 5-burner gas cooktop and a painted furniture style Island. This home has rich hardwood floors, 8 foot doors on the first floor, upgraded carpet, tile and more. The three-car tandem garage with openers and insulated garage doors finishes out this remarkable home. Don't miss this amazing opportunity! The community of Reunion is part of the award-winning NISD school district with bus transportation. Easy freeway access to Fort Worth and DFW airport makes this a must-see home. Start making memories in your new American Legend home!