4
3
2102
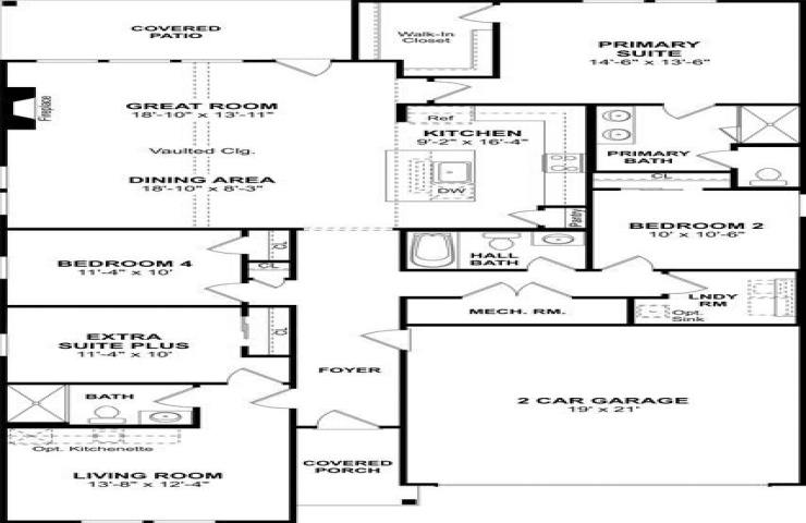
Property Description: Amazing new construction single-story home in Howe ISD! Move in ready single-story with an Extra Suite Plus - including private bath and living room. This professionally curated home with K. Hovnanian's desirable Farmhouse looks palette showcases dark stain shaker cabinets, quartz countertops, laminate flooring, and black metal shade pendant lights. A cozy fireplace anchors the great room. Spend time in the primary suite, your own personal oasis located at the back of the home with large walk-in closet and private ensuite bath. Wind down at the end of the day by spending time on the shady covered patio, just off the main living space.