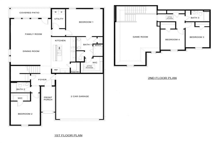
4
3
2547
Property Description: New! Gorgeous Two story! Four bedrooms, three full baths, with huge game room. Home includes, island kitchen, granite counters throughout, LED lighting, full sprinkler system, professionally engineered post tension foundation, and so much more! Perfectly situated on FM 6, just half a mile from Highway 78, Elevon provides easy access to Farmersville, Rockwall, and neighboring towns. Enjoy the proximity to Lake Lavon, just 1-mile away, where you can indulge in camping, picnicking, and various outdoor activities. Don't miss out on the opportunity to make Elevon your new home. Contact us today to schedule a tour and discover the endless possibilities that await you.