5
3
2659
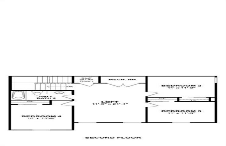
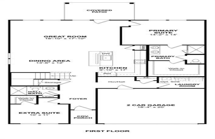
Property Description: NO MUD, NO PID. NEW CONSTRUCTION! Located near I-20, Caldwell Lakes is minutes from major employment centers and premier shopping, dining, and entertainment. Unwind after a long day in the Tigris II's relaxing primary suite, complete with a spa-like primary bath. Grey shaker cabinets and quartz countertops in the kitchen overlooking the dining area and great room provide a comfortable open layout. Three secondary bedrooms and hall bath upstairs! Spend your weekends with the kids at the community playground or relax by the pond.