5
4
3711
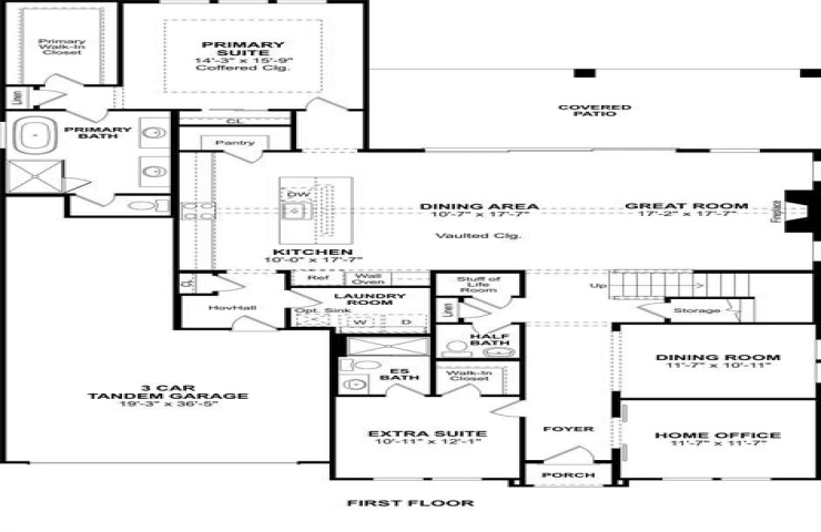
Property Description: This stunning 2-story Stirling home design features 5 spacious bedrooms, 4.5 baths, 3-Car Garage, an upstairs loft and media room, and convenient home office. A lovely kitchen with island overlooks the dining area and great room with access to the 12'x27' covered patio. An elegant primary bedroom includes a relaxing private bath with separate vanities and large walk-in closet. Located in master-planned community of Elevon, the neighborhood will offer amazing amenities including a resort style pool, community garden, playground, and walking trails. HOA fee includes high speed internet!