3
2
1524
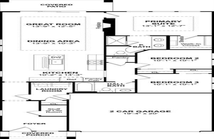
Property Description: This fantastic new single-story home offers a welcoming open concept kitchen, dining, and great room with luxurious laminate flooring. The kitchen showcases quartz countertops, white shaker cabinets, black metal shade pendant lighting, and an island that overlooks the dining area and great room with covered patio access. A primary suite features an ensuite bath with dual sinks and a spacious walk-in closet. Tucked away from the main living space are 2 secondary bedrooms and a hall bath. Residents will enjoy future on-site amenities at Heritage Ranch including walking trails, a pool, and a community park. Schedule a tour today.