4
3
2713
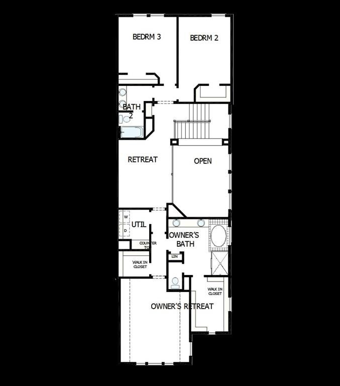
Property Description: Experience the modern charm of The Camborne floor plan by David Weekley Homes, where vibrant luxuries and sleek conveniences await. Unleash your interior design creativity in the upstairs retreat and sunlit study, perfect for crafting your ideal specialty rooms. The open-concept living spaces feature energy-efficient windows, soaring ceilings, and endless lifestyle potential. The gourmet kitchen boasts a large pantry and a family breakfast island, making it a culinary haven. Your Owner’s Retreat offers a refined en suite bathroom with a super shower and a spacious pair of walk-in closets, ensuring a blissful start and end to each day. Each elegant secondary bedroom comes with ample closets and room for personalization. Build your future with confidence, backed by our industry-leading warranty, in the vibrant Fort Worth, Texas, community of Walsh.