4
3
2411
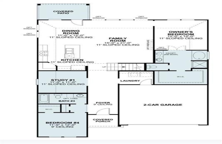
Property Description: Discover this exceptional new construction home at 7773 Moosewood Drive in Fort Worth, built by M-I Homes. This thoughtfully designed single-story home offers comfortable living space with an open-concept design that seamlessly connects the main living areas. This home features: 4 bedrooms, 3 full bathrooms Study Quartz kitchen countertops Deluxe owner's en-suite bathroom Covered patio The well-planned floorplan maximizes functionality while maintaining an inviting atmosphere. The owner's bedroom suite provides a private retreat with an en-suite bathroom for added convenience. The additional 3 bedrooms offer flexibility for family, guests, or home office needs. Located in Fort Worth's desirable Sanderos neighborhood, this home provides easy access to local parks and recreational opportunities. The area offers a family-friendly environment with convenient proximity to parks for outdoor activities and community engagement. Built by M-I Homes, this new construction home showcases quality craftsmanship and attention to detail. The thoughtful design emphasizes both comfort and functionality, creating spaces that accommodate various lifestyle needs. This home represents an excellent opportunity to own a brand-new home in a sought-after Fort Worth neighborhood. Contact our team to learn more about 7773 Moosewood Drive Schedule your visit today.