3
2
1875
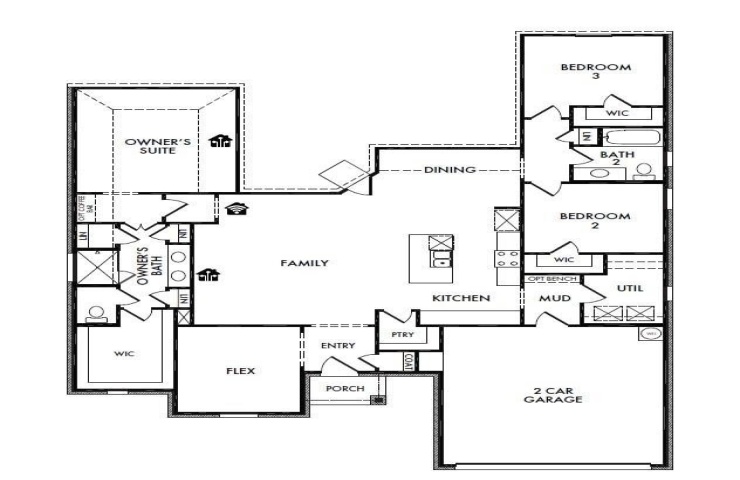
Property Description: MLS# 21087649 - Built by Impression Homes - Dec 2025 completion! ~ This stunning new construction home in the desirable Stone Eagle subdivision offers modern living with traditional charm. Spanning 1,875 square feet, the layout features 3 spacious bedrooms, study and 2 full bathrooms, perfect for families or guests. The open floorplan is accentuated by decorative lighting and high-speed internet access, while the kitchen boasts a large island and pantry, ideal for culinary enthusiasts. Enjoy comfortable living with central heating and cooling, ceiling fans, and a cozy living area. Outdoor space includes a covered patio for relaxation. Located within the Azle ISD, this future home is set for completion by December 31, 2025. Don't miss out on this exceptional residence with a 2-car garage and quality finishes throughout.