3
2
1780
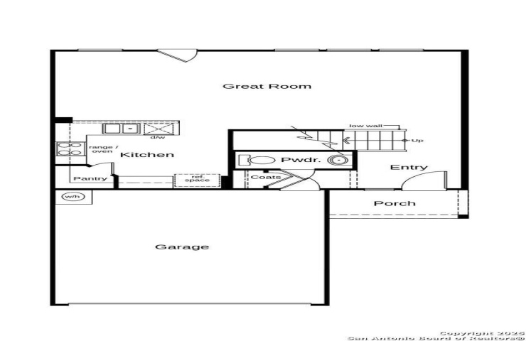
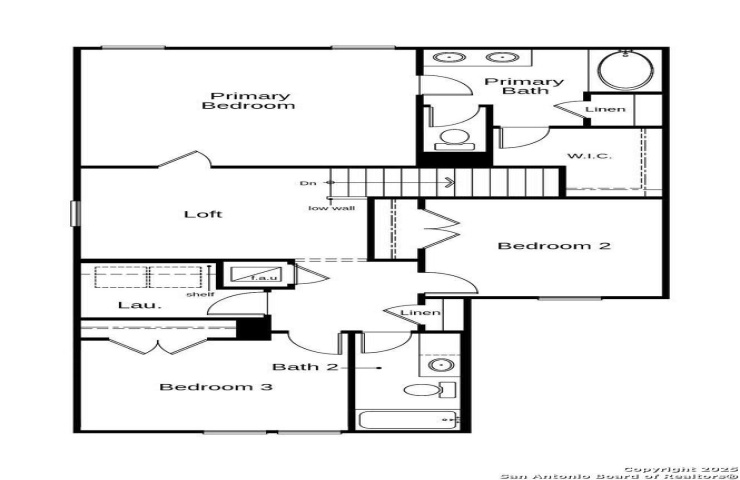
Property Description: Step into modern comfort with this beautifully designed home featuring an open floor plan perfect for entertaining. The kitchen shines with Whirlpool stainless steel appliances, Woodmont Cody 42-in. upper cabinets, a stylish Daltile tile backsplash, and an extended breakfast bar. Unwind in the primary bath with a raised vanity and a luxurious 42-in. garden tub/shower framed in Daltile tile. Elegant touches include a Carrara-style entry door, Kwikset Polo knob interior hardware, and durable vinyl plank flooring in the kitchen, bathrooms, and great room. Enjoy peace of mind with a built-in wireless security system. Outside, an automatic sprinkler system and fully sodded yard offer easy maintenance and year-round curb appeal.