4
4
3387
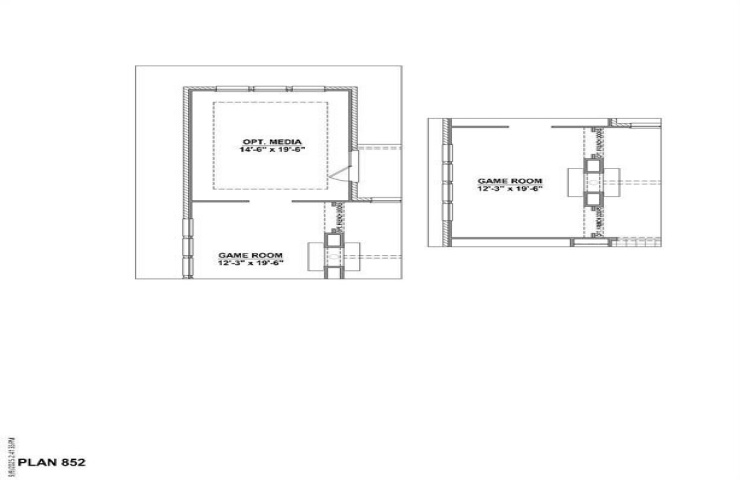
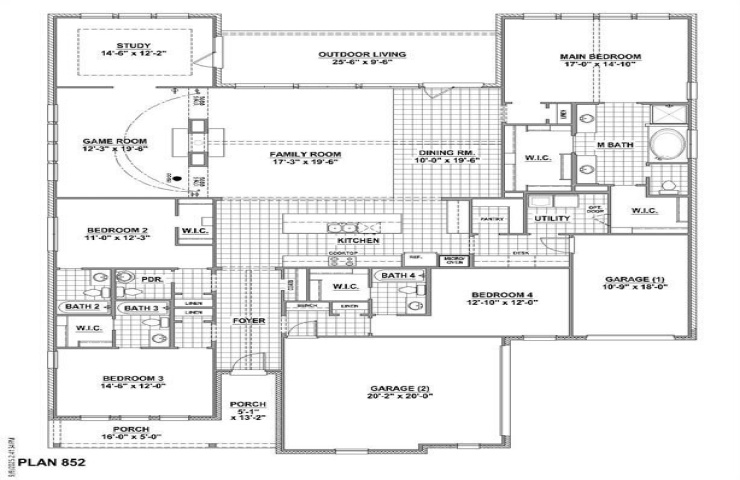
Property Description: Beautiful 1 story home with 4 bedrooms, 4 full baths, 1 powder bath, dining area, study, game room, media room, outdoor living area and 4-car garage. Thoughtfully designed with your family in mind, this fabulously designed plan has everything you need! As you enter the foyer from your extended porch, you can easily access three secondary bedrooms each with their own walk-in closet and full-size bathroom. Continuing through the foyer, you will enter the gourmet kitchen that has been designed to be the heart of the home and is complete with a large center island, ample counter space and a tucked away pantry and laundry room. Enjoy preparing your meals with views into the dining and living areas. In the family room, your attention will be drawn to the gorgeous center fireplace and cathedral ceilings, complete with access to the huge outdoor living space. The spacious game room overlooks the main living area and gives you access to the private study located on the opposite side of the home. The main bedroom offers the perfect retreat for relaxation! Bathe in natural light from the wall of windows and enjoy the amazing en-suite bathroom with dual vanities, soaking tub and two walk-in closets.