3
2
1571
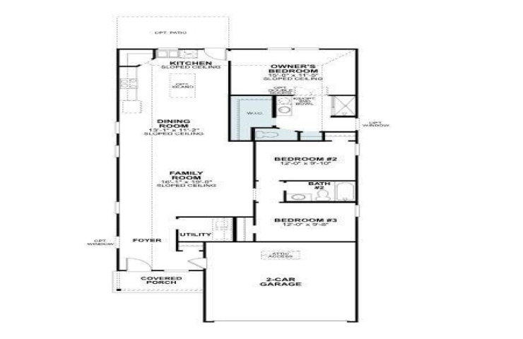
Property Description: Discover this stunning new construction home at 7513 Fenton Parkway in Pilot Point. This thoughtfully designed single-story home offers a comfortable living space with an open-concept layout ideal for daily living and entertaining. Key Features: • 3 spacious bedrooms with owner's suite in its own private corner on the main floor • 2 full bathrooms with quality fixtures and finishes • Open-concept living space seamlessly connecting kitchen, dining, and family areas • Single-story design for easy accessibility and flow • New construction with contemporary finishes and thoughtful design The floorplan maximizes both functionality and comfort, creating an inviting atmosphere for family life and entertaining. The owner's bedroom on the main level provides convenience and privacy, while the additional bedrooms offer flexibility for family, guests, or a home office. The open-concept design enhances natural flow and light throughout the home. Schedule a visit today!