4
3
2078
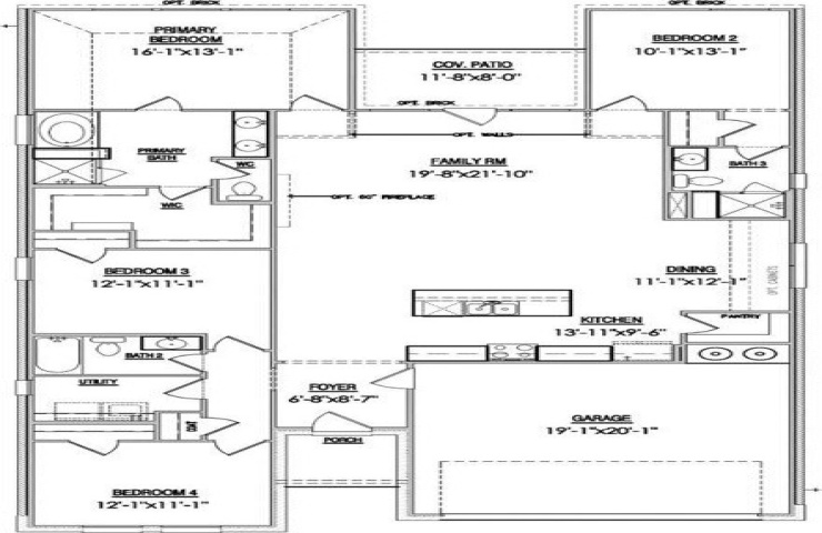
Property Description: The Jason is a single-story, energy-efficient new construction home in Godley, TX, offering 2,078 sq. ft. of thoughtful, open-concept living. The chef-inspired kitchen features a large center island, 42inch soft-close cabinets, quartz countertops, and a walk-in pantry, flowing seamlessly into the dining and family areas—perfect for everyday living and entertaining. The private owner’s suite includes a spa-style bath with a separate tub and shower, along with a generous walk-in closet. Two secondary bedrooms share a well-appointed hall bath, while a dedicated fourth bedroom features its own private bathroom, ideal for families with older children or multi-generational living. Additional highlights include a cozy fireplace, upgraded door hardware, and LVP flooring throughout all main areas. Located on a cul-de-sac in a USDA-approved community with no HOA, residents still enjoy fantastic amenities such as a splash pad, basketball court, playground, dog station, greenspace, and sidewalks throughout. Conveniently situated just one mile from grocery stores and 40 minutes from downtown Fort Worth, The Jason also qualifies for down payment assistance programs, making it the perfect blend of comfort, convenience, and style.