5
3
2508
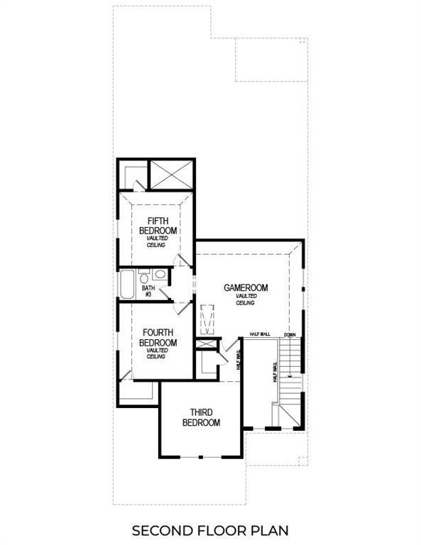
Property Description: MLS# 21091196 - Built by First Texas Homes - Nov 2025 completion! ~ Located in Brookfield, Melissa, TX, this thoughtfully designed home offers 5 bedrooms, 3 bathrooms, 2 Bed and 2 Bath on FIRST Floor, and 2,508 sq ft of flexible living space that’s built for real life. Whether you're gathering with loved ones or enjoying a quiet moment, this home gives you the space, and comfort, to do both. Inside, you’ll find a home office on the first floor, providing exceptional flexibility and convenience. An inviting entry features an 8-ft door and vaulted ceiling in family room, leading to a kitchen with 42 cabinets, a large island, gas cooktop, and walk-in pantry. This home is designed for entertaining, boasting a covered patio, game room, and home theater, designed to make everyday living easier and more enjoyable. With close access to HW SR121, HW 75 and HW 380, just a few minutes from Melissa Town Center AND Historic Downtown McKinney, offering rural living with easy access to urban amenities, you’ll enjoy the convenience of everything you need, without giving up the peace of coming home. If you’re looking for a home that fits your life, we’d love to show you around. Schedule your private tour today.