4
3
3432
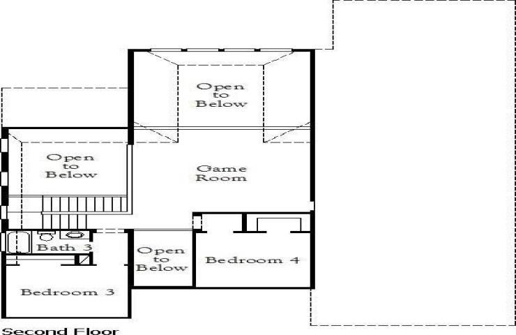
Property Description: MLS# 21091265 - Built by Coventry Homes - Const. Completed Feb 24 2026 ~ Discover your dream home in the heart of the award-winning Pecan Square master-planned community! This elegant two-story home features 4 spacious bedrooms, 4 modern bathrooms, and 3-car garage. The primary bedroom is graced with a charming bow window, providing a cozy nook with a view. Step into the expansive great room, filled with natural light from numerous windows and tall ceilings that create an airy, open ambiance. The open-to-below design adds to the grandeur, while the media room and game room offer perfect spaces for entertainment and relaxation. The large utility room ensures practicality and convenience. Enjoy outdoor living on the covered patio, ideal for gatherings. Located in the amazing Pecan Square community, this home offers brand new schools and convenient access to the airport, Dallas, Fort Worth, and an abundance of shopping and dining options. Ask us about excellent buyer incentives!