4
4
3642
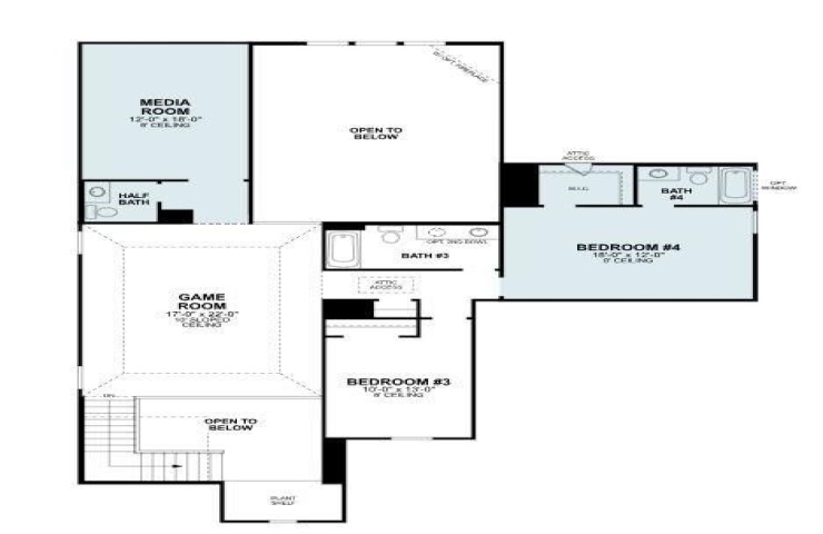
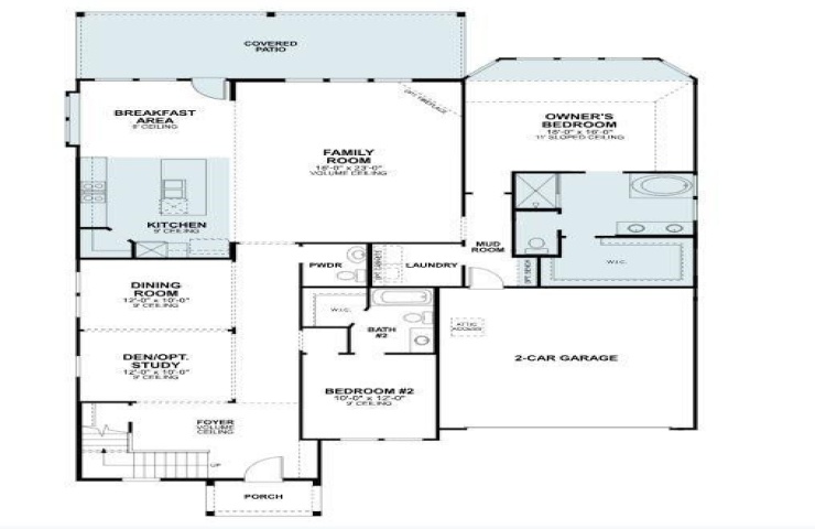
Property Description: Built by MI Homes, 4004 Yellow Bells Way in Prosper is an impressive 4-bedroom, 4-bathroom 2.0 half baths home with the owner's bedroom conveniently located on the main floor. Enter the foyer and you'll discover a spacious den, a formal dining room, and a powder bath. Continue into the open-concept living space, which creates a seamless flow between the kitchen, breakfast area, and family room that's perfect for both daily living and entertaining. The thoughtful floorplan maximizes functionality while maintaining an inviting atmosphere throughout. The first-floor owner’s suite includes an en-suite bathroom, bay windows and walk-in closet, while the secondary bedrooms and full baths provide comfortable accommodations for families of all sizes. Last but certainly not least is the media room and game room located on the second floor! And best of all, this new construction home presents an excellent opportunity to own a move-in-ready home with no previous wear. Located in the desirable Prosper - Celina area, this home is situated in a neighborhood renowned for its family-friendly atmosphere, top-rated schools, and proximity to beautiful parks. The Lilyana community also provides unrivaled amenities, including a resort-style pool and pavilion, hiking and biking trails, a playground, and so much more. Schedule your visit today!