4
2
1482
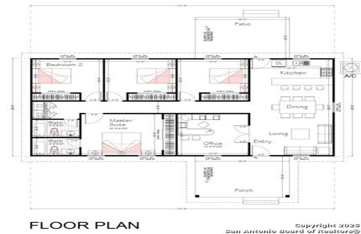
Property Description: New construction in "Summerwood Subdivision" in La Pryor, Tx on an unrestricted 5 acre lot. The house is being built at the rear of the lot leaving plenty of land for your business, additional home sites or agricultural use. Property tax information is not yet available as taxes have not been assessed yet.