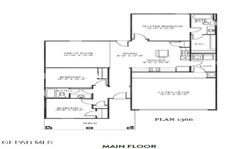
3
2
1366
Property Description: The Denton offers a well-balanced blend of simplicity and style in a compact, functional layout. With 3 bedrooms and an open-concept living space, this home is ideal for individuals, couples, or small families who want modern design without wasted space.