3
2
1254
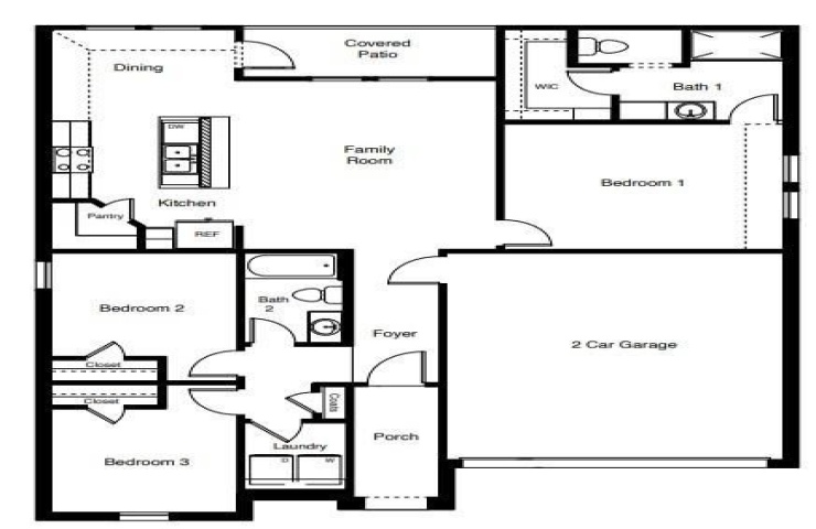
Property Description: D.R. HORTON AMERICA'S BUILDER is EXCITED TO SERVE AS YOUR HOME BUILDER in the FABULOUS COMMUNITY of HAMPTON HILLS in ABILENE! Great open concept single Story home! Optimizing indoor and outdoor entertainment space with an open Living, Dining and large Chef's Kitchen complete with Island, Stainless Steel Appliances, Gas Range, Granite Countertops, 4 inch backsplash, Cabinet Hardware, SS undermount Sink and walk-in pantry. Large primary and big walk-in Closet. Wood look tile floors with plush carpet only in the Bedrooms, Gas Tankless Water Heater, double pane-low E Windows plus Home is Connected Smart Home Technology Pkg. Covered front porch, wide covered back Patio, 6 ft wood privacy fenced backyard with metal posts, Landscape Pkg with full sod, Sprinkler System, rain sensor and more!