3
2
2055
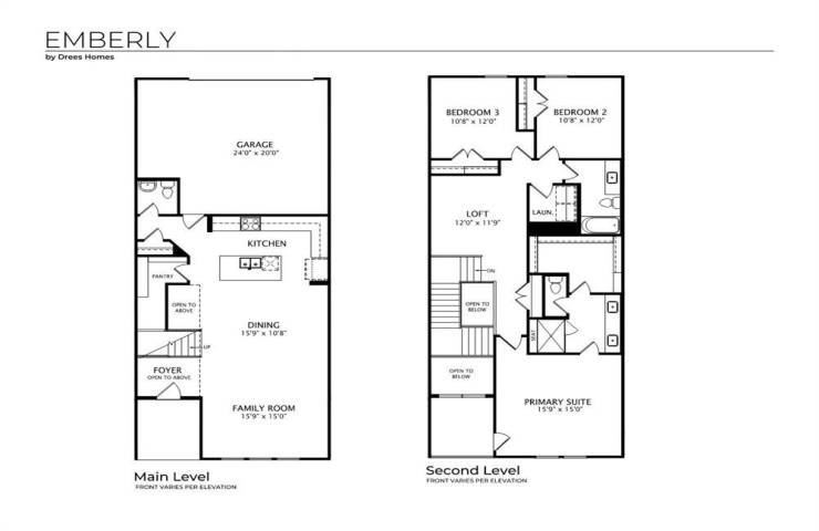
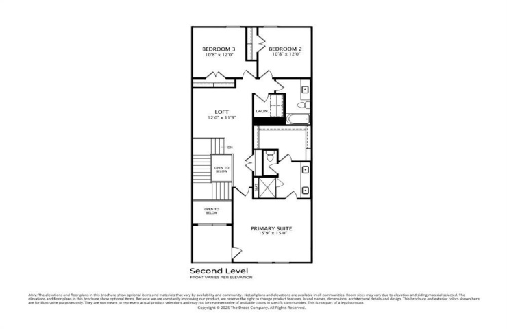
Property Description: MLS# 21099364 - Built by Drees Custom Homes - Apr 2026 completion! ~ Emberly at Mosaic Townhomes welcomes you with an elegant two story foyer and an open layout designed for modern life. On the main floor, the kitchen, dining, and living areas connect for easy flow, perfect for entertaining or everyday routines. Upstairs, the bedrooms are set apart for privacy, with a cozy loft that adds flexible space for work or relaxation. The Primary bedroom features a private balcony, giving you your own retreat to enjoy fresh air and quiet moments. With its smart design and balance of open gathering areas and private escapes, the Emberly delivers style and comfort without the upkeep of a single family home.