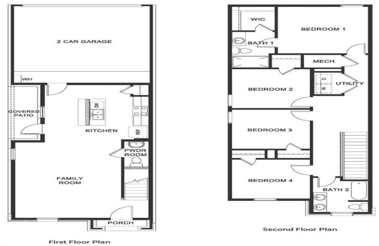
Property Description: The Burbank plan by D.R. Horton in the California Meadows community in Arlington, Texas, offers a modern and spacious two-story home with approximately 1,606 sq. ft. of living space. This home includes 4 bedrooms, 2.5 bathrooms, and a 2-car garage, designed for comfortable family living. As you enter, you’ll be greeted by a welcoming open layout that seamlessly connects the dining, living, and kitchen areas—ideal for family gatherings and entertaining guests. Key features of the home include a stylish kitchen with painted cabinets, quartz countertops, a large island, stainless steel appliances with gas cooking range. A powder bath off the kitchen for guest convenience. The bedroom 1 suite upstairs includes a walk-in closet and a luxurious bathroom with walk-in shower and quartz countertops. Vinyl flooring throughout the foyer, dining, kitchen, and family room, bathrooms, and utility room. A side covered patio and low-maintenance lawn care to save time and reduce costs. You’ll also enjoy smart home features, from your couch or from 500 miles away. You’ll never be too far from home with America’s smart home. The Burbank plan is perfect for families who want modern amenities, and a comfortable, low-maintenance lifestyle.