3
2
1382
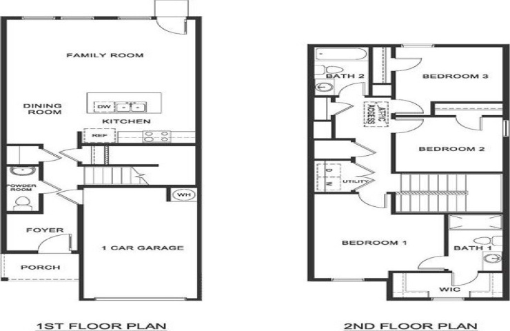
Property Description: New homes in Princeton, TX! Welcome to Arbor Trails South! This gorgeous new Express home community is located in Collin County Branch Princeton area off CR 982. Here at DR Horton, your new home builder, we offer 9 different plans in Arbor Trails South ranging from a 2 bed 2.5 bath 1 car 1,101 sq ft to a 4 bed 2.5 bath 2 car that's 2,054 sq ft.