4
2
2427
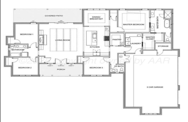
Property Description: Experience the charm of new construction in Steelwood Ranch with this Modern Farmhouse on 1.3 acres! This energy-efficient 4 Bed, 2.5 Bath home offers sophisticated design and low-maintenance living. Key features include a Class 4 roof, Pella windows, and spray foam insulation. The inviting, large covered front porch leads to a spacious Great Room with a cozy fireplace. The chef's kitchen is a focal point, boasting quartz countertops, wood tile flooring, a large island with seating, a 36'' gas range with double ovens, and a walk-in pantry. The isolated Primary Suite is a true sanctuary, featuring a spa-like bath and an expansive walk-in closet. Bedrooms 2 & 3 share a full hall bath. Features a 3-car garage, grass, sprinklers, and a fence! Don't miss this one.