4
2
2106
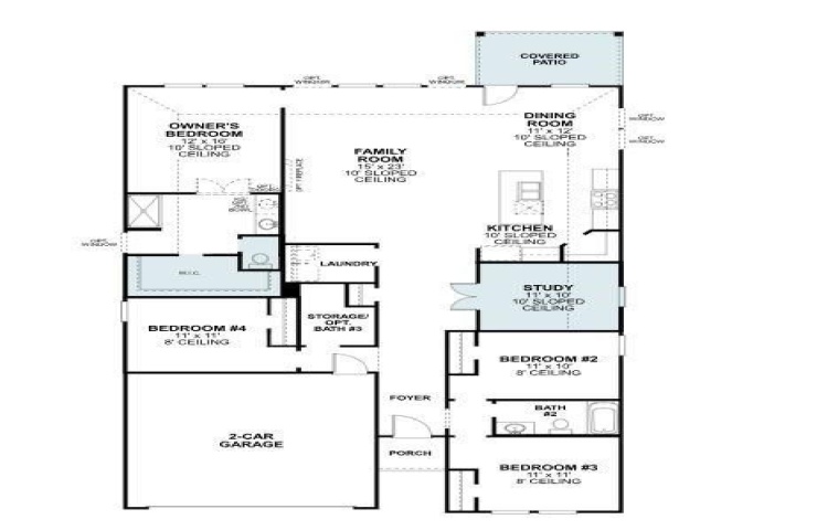
Property Description: Discover this stunning new construction home at 3405 Kingdom Drive in Denton, built by M-I Homes. This thoughtfully designed 4-bedroom, 2-bathroom home offers an open-concept living space, perfect for both daily life and entertaining. Key Features: Study Covered patio Quartz kitchen countertops Covered patio This home sits in a desirable Denton neighborhood known for its excellent design quality and proximity to beautiful parks. The area offers easy access to outdoor recreation and green spaces, making it ideal for families and outdoor enthusiasts. The open-concept design creates an inviting atmosphere for gathering and relaxation. Each of the 4 bedrooms provides comfortable space, while the 2 full bathrooms offer convenient access throughout the home.. Experience the benefits of new construction with this well-positioned home in Denton's growing community, where quality design meets neighborhood charm near local parks and recreational opportunities. Schedule a visit today!