4
2
2106
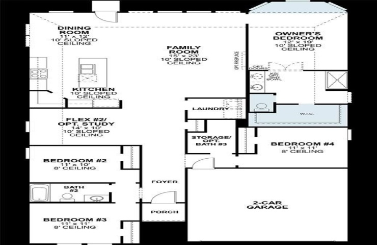
Property Description: Built by M-I Homes! Discover this stunning new construction home at 3517 Royal Forest Drive in Denton, Texas. The thoughtfully designed single-story home offers a spacious, open-concept living space, perfect for daily life and entertaining. Key Features: • 4 spacious bedrooms with owner's suite in its own private corner on the main floor • 2 full bathrooms with quality finishes throughout • Open-concept layout connecting kitchen, dining, and living areas seamlessly The home's layout emphasizes both functionality and comfort. The main-floor owner's bedroom provides privacy and easy access, while the additional bedrooms offer flexibility for family, guests, or a home office. The open-concept design ensures a natural flow between spaces, making entertaining and daily living effortless. Schedule a visit today!