4
3
2894
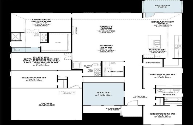
Property Description: Discover this stunning new construction home at 3508 Kingdom Drive in Denton, built by M-I Homes. This thoughtfully designed single story 4 bedroom, 3-bathroom home offers spacious amount of comfortable living space. This home features the following: Open-concept living space creates seamless flow between main living areas. 4 spacious bedrooms plus 2 home offices! 3 full bathrooms ensure convenience for daily routines. Large Yard with a covered patio The home's thoughtful floorplan maximizes both privacy and gathering spaces, making it ideal for everyday living and entertaining. The open-concept design connects the kitchen, dining, and living areas, creating an inviting atmosphere for family time. Located in a desirable Denton neighborhood, this home offers proximity to beautiful parks perfect for outdoor recreation and family activities. The area's well-established community provides a welcoming environment with tree-lined streets and quality design standards throughout. The new construction ensures everything is move-in ready with contemporary finishes and efficient systems. M-I Homes' reputation for quality craftsmanship is evident throughout this carefully constructed home. This home represents an excellent opportunity to own new construction in one of Denton's sought-after neighborhoods, combining modern living with the charm of an established community setting. Schedule a visit today!