4
2
2239
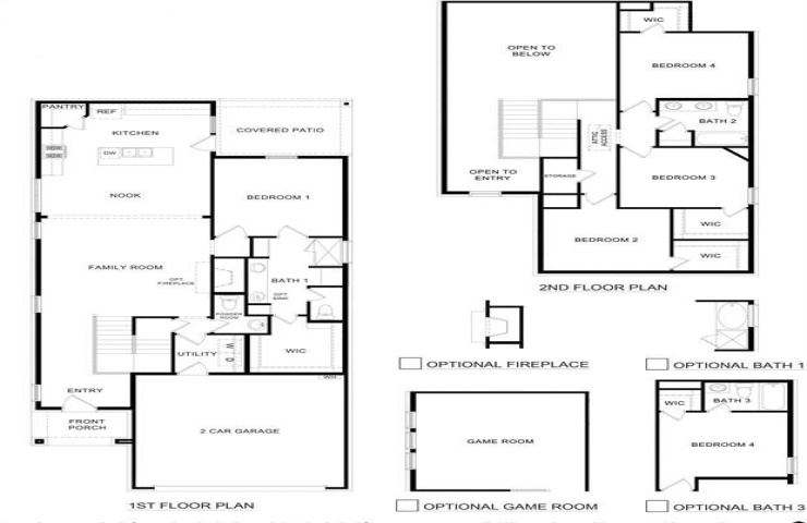
Property Description: This is gorgeous 2 story home features 4 bedrooms and 2.5 bathrooms with the owner's suite downstairs. You will have a comfortable open concept, where your kitchen, living, and dining areas blend into a space perfect for everyday living. The kitchen features cabinets with hidden hinges and crown molding, hard surface countertops, an island, and stainless-steel dishwasher, microwave, and gas range, to make meal prep easy. Has a nice back patio for outdoor living with family and friends. Come fall in love with your new home and enjoy the amenities of the amazing community of Bel Air Village!