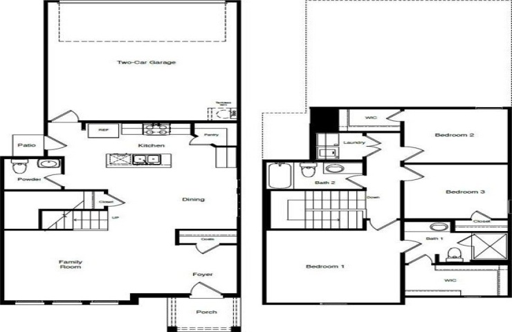
Property Description: Fabulous new D.R. Horton home in the new community of Orchard Village located in South Fort Worth and Everman ISD! Newly designed Homes to suit the needs of the most discerning Buyers. Beautiful Two Story 3 Bedroom Almond Floorplan-Elevation C, with a quick estimated November completion! Modern open concept with Bright Dining area, spacious Living and large Chef's Kitchen, Granite countertops, Island, Stainless Steel Whirlpool Appliances, electric Range and walk-in Pantry. Upstairs Luxurious main Bedroom with a 5 ft oversized shower and walk-in Closet, secondary bedrooms and laundry. Extended tiled Entry, Hall and Wet areas plus Home is Connected Smart Home Technology. Cultured Marble vanities in full Baths. Covered front porch and Back Patio, 6 ft privacy fenced Backyard, Landscaping pkg, Full Sprinkler System and more! A perfect blend of comfort and convenience - Tee off at nearby Southern Oaks Golf Course, pursue higher education at TCC South Campus, plus short commute to I-20, I-35, and DFW Int'l Airport.