4
3
3209
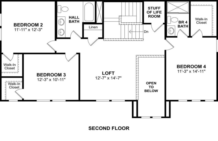
Property Description: Uncover modern luxury in Elevon with this brand new 4 bed, 3.5 bath home. Beyond the welcoming foyer of this stately home, a bright open floorplan features a home office, intimate dining room, and spacious kitchen overlooking the well-lit great room. A unique HovHub is ideal for homework while the HovHall keeps your home tidy. An elegant primary bedroom with private bath includes dual sinks, linen closet and access to a huge walk-in closet. Bedroom 2 and 3 each include a walk-in closet while bedroom 4 features a private bath. The versatile loft is great for additional entertaining. HOA fee includes high speed internet! This home is ideally situated near Highway 78, and the cherry on top is that you're located in Elevon, an expansive master-planned community with opportunity for activity around every corner. Seize the opportunity to call this house your new home now!