3
2
1629
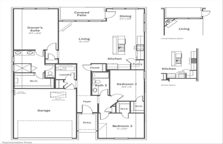
Property Description: MLS# 21105107 - Built by Taft Homes - Feb 2026 completion! ~ This contemporary single-family residence, set to be completed by February 27, 2026, offers 1,629 sq. ft. of modern living space in the desirable Summer Crest subdivision. Featuring three spacious primary bedrooms and two full bathrooms, this home is designed for comfort and convenience. The open floor plan includes a stylish eat-in kitchen with granite counters, a kitchen island, and a pantry, perfect for both casual dining and entertaining. Enjoy the elegance of decorative lighting and vaulted ceilings throughout, while smart home technology and high-speed internet capabilities enhance your living experience. The exterior boasts a covered patio, private entrance, and an oversized yard. Additional features include a two-car garage, energy-efficient heating and cooling systems, and quality flooring options of carpet and ceramic tile. Located within the Crowley ISD, this home is an ideal choice for families seeking a modern lifestyle.