4
3
2935
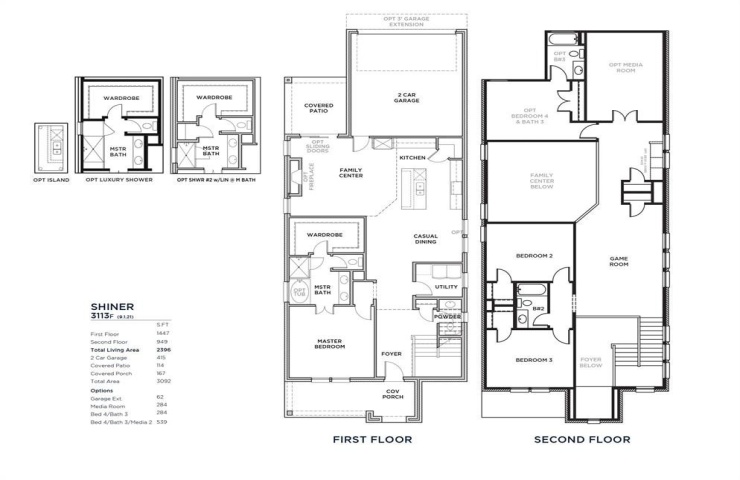
Property Description: Beautiful Shaddock Home in the highly sought-after Fields Community in Frisco, Texas. This popular floor plan features 4 bedrooms, 3.5 baths, a media room, a game room, and an optional tech space. Includes numerous upgrades throughout. The community center offers a pool, tennis courts, and pickleball courts. A must-see home for your family!