5
4
4147
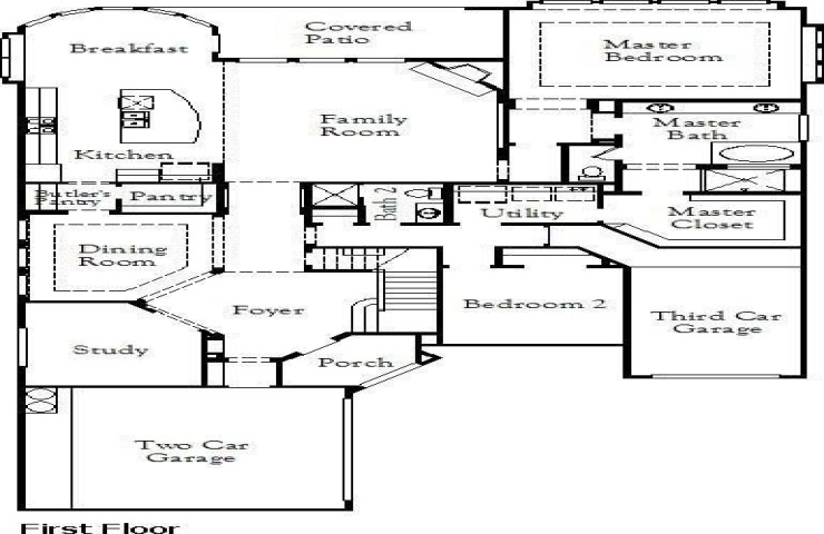
Property Description: MLS# 21106197 - Built by Coventry Homes - Const. Completed Nov 14 2025 ~ Introducing the Lockhart plan—an architectural gem in the heart of Saddle Star, featuring a striking Auburn Hills brick elevation that makes a bold first impression. This 5-bedroom, 4.5-bathroom home offers luxury at every turn, from the elegant curved staircase to the cozy fireplace and bright, beautifully designed interior. Entertain effortlessly with a spacious media room and unwind on the expansive Texas-sized covered patio, perfect for those hot summer days. The primary suite is a true retreat, complete with a charming bow window that floods the room with natural light. Don’t miss your chance to own this breathtaking home—schedule your private tour today!