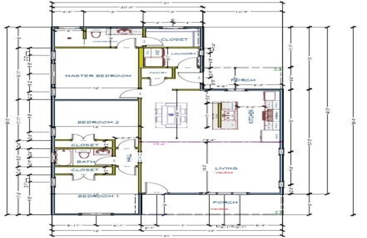
3
2
1390
Property Description: New Construction 3-bedroom, 2-bath home combines modern style with everyday comfort. Step inside to an open floor plan with vaulted ceilings that create a bright, spacious feel. The kitchen is a chef’s dream with quartz countertops, plenty of cabinetry, and a convenient pot filler above the stove. The private primary suite offers a relaxing retreat, featuring an en-suite bath with a walk-in shower and a spacious walk-in closet. Sleek, contemporary finishes flow throughout, blending elegance and warmth. Built with spray foam insulation for superior energy efficiency and year-round comfort. Estimated completion: December 20th