5
4
3383
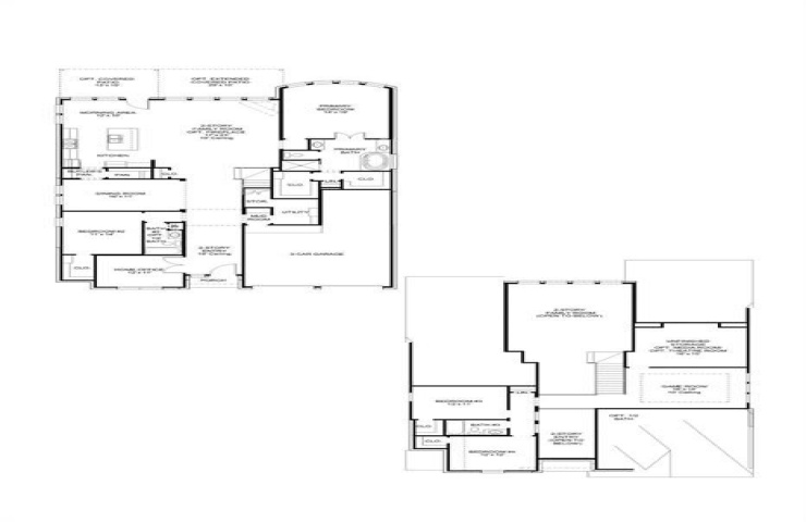
Property Description: Home office with French doors set at two-story entry. Formal dining room across from staircase. Two-story family room opens to kitchen and morning area. Family room features a wood mantel fireplace and wall of windows. Kitchen features deep walk-in pantry, butler's pantry, double wall oven, 5-burner gas cooktop, and large island with built-in seating space. First-floor primary suite includes bedroom with wall of windows. Double doors lead to primary bath with dual vanities, freestanding tub, separate glass-enclosed shower and two walk-in closets. An additional bedroom is downstairs. A game room and secondary bedrooms are upstairs. Extended covered backyard patio. Mud room off three-car garage.