3
2
1400
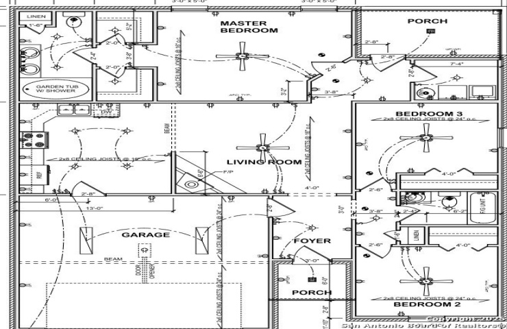
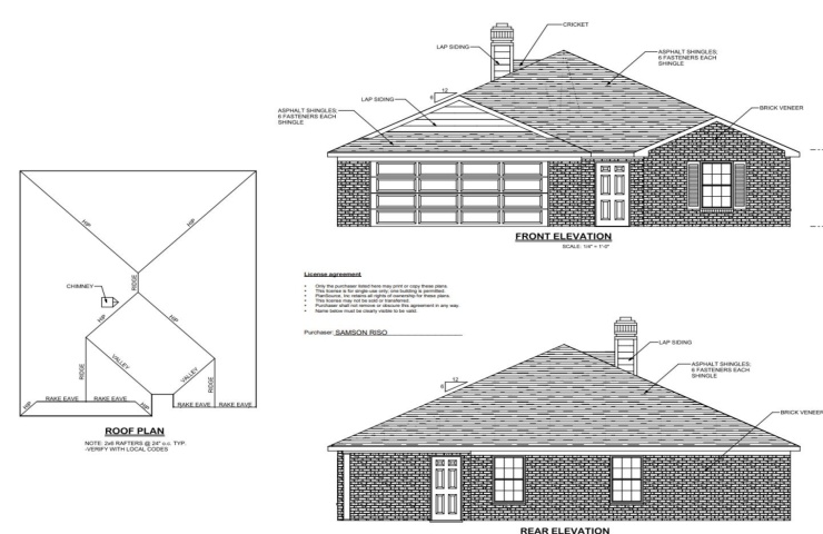
Property Description: New Construction Moore TX, easy commute to San Antonio, plenty of elbow room on this 3 Bedroom 2 Full Bath 2 Car Garage Home. Just under 1/2 Acre Lot with minimal restrictions allowing for creative future designs if desired. Estimated completion date 9/30/25. Photos shown are examples of interior features from similar construction and design by builder.