4
2
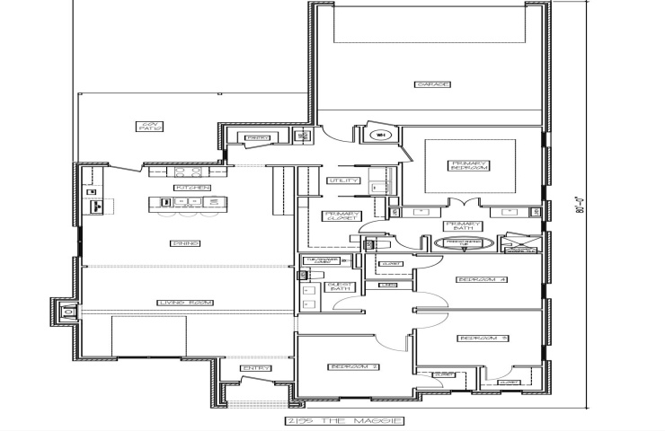
2195
Property Description: Southern Homes by Dan Wilson is proud to present The Maggie, a beautifully crafted new construction home for you and your family. This home features four bedrooms, two bathrooms and a two car garage. Every home under construction has its own style and design, unique from its neighbor. You will be sure to find custom details and gorgeous finish selections throughout. Escondido Ranch is one of the newer neighborhood in the award-winning Frenship School District. Trusted home builder, quality construction and a wonderful neighborhood...WELCOME HOME! Call the Southern Homes Sales Team or your favorite realtor today! (All selections subject to change*)