4
3
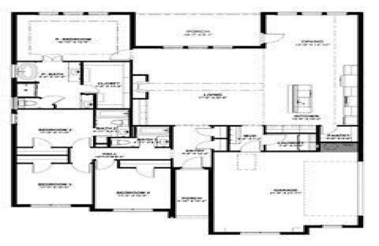
2385
Property Description: Timeless Design Meets Modern Comfort on a 1-Acre Homesite Discover the ideal blend of classic charm and contemporary living in this brand-new 4-bedroom, 3-bath home offering 2,385 sq. ft. of thoughtfully designed space. Nestled on a spacious 1-acre homesite, this property provides the privacy and tranquility of country-style living with the convenience of modern amenities. The traditional exterior creates timeless curb appeal, complemented by a fully finished front yard featuring sod, a sprinkler system, landscaped flowerbeds, and two newly planted trees for an inviting first impression. Step inside to an open-concept layout that seamlessly connects the kitchen, dining area, and great room-an ideal setting for both family gatherings and everyday living. The chef-inspired kitchen includes high-end finishes, generous counter space, a large center island, and excellent storage, making it the true heart of the home. The primary suite serves as a private retreat, complete with a luxurious en-suite bathroom and a spacious walk-in closet. Three additional bedrooms and two full bathrooms provide flexibility for family, guests, or a dedicated home office. A two-car garage adds convenience and extra storage, while the expansive 1-acre lot offers endless possibilities for outdoor living, future projects, or simply enjoying the peaceful surroundings. This home combines timeless design, modern comfort, and quality craftsmanship-offering a setting that is both functional and inviting for its next owner.