4
2
1877
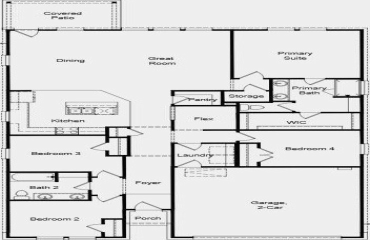
Property Description: New Construction - Ready Now! Built by Taylor Morrison, America's Most Trusted Homebuilder. Welcome to the Rayburn at 14925 Hierba Mora Drive in Madero. Step inside from the cozy front porch and discover a layout designed for everyday comfort and connection. Toward the back of the home, the kitchen, dining area, and great room flow together beautifully—ideal for hosting or simply relaxing. The private primary suite offers a peaceful retreat with a dual-sink vanity, walk-in shower, and spacious closet, thoughtfully separated from the three secondary bedrooms. A flexible room near the kitchen adds extra space for work, play, or creativity. Located on a generous 50' homesite, this home is part of Fort Worth’s Madero community—a thoughtfully planned neighborhood with winding streets, lush green spaces, and exciting amenities on the horizon. Enjoy future open-air gathering spots, sports courts, a resort-style pool, walking trails, and local shops—all with no MUD or PID taxes and easy access to Fort Worth’s vibrant cultural scene. Additional highlights include: Covered outdoor living. Photos are for representative purposes only. MLS#21067869