4
4
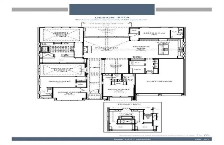
3522
Property Description: Home office with French doors set at entry. Formal dining room and game room with French doors frame extended entry. Family room with a decorative beamed ceiling, sliding glass door and fireplace opens to morning area and kitchen. Kitchen hosts elongated island with built-in seating space. Primary suite includes bedroom with wall of windows. Dual vanities, freestanding tub, separate glass-enclosed shower and large walk-in closet in primary bath. All secondary bedrooms feature private baths. Soaring ceilings and large windows add to this generous four-bedroom design. Extended covered backyard patio. Mud room leads to three-car garage.