4
2
2627
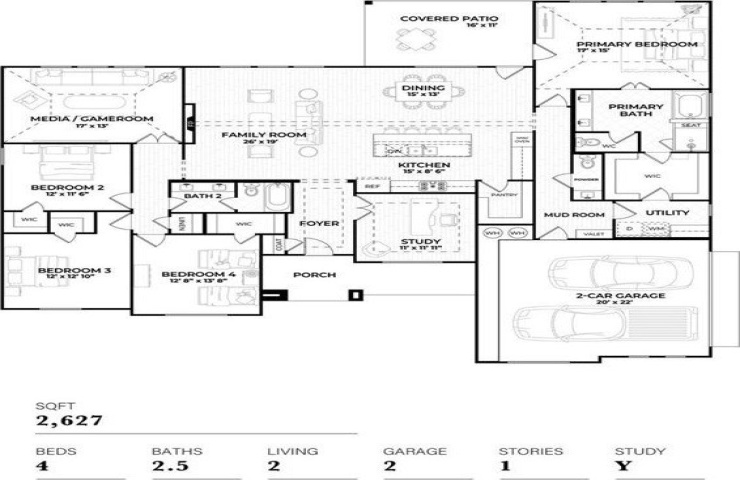
Property Description: MLS# 21115715 - Built by Dunhill Homes - Ready Now! ~ Discover luxury living in this expansive 2,627 sqft home featuring 4 spacious bedrooms, each with walk-in closets, 2.5 baths, and a 2-car garage. The open-concept great room with a cozy fireplace flows into a gourmet kitchen boasting waterfall countertops, built-in appliances, and a walk-in pantry, while the media or game room and dedicated study add versatility for work and play. Retreat to the primary suite with a massive walk-in closet connected to the laundry room, an oversized shower, and a private patio for ultimate relaxation.