4
2
2484
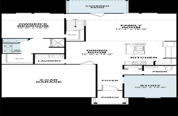
Property Description: Discover this stunning new construction home at 1125 South Hill Drive in Crowley. Built by M-I Homes, this thoughtfully designed 2-story home offers open-concept comfortable living space with the owner's bedroom conveniently located on the main level. Key Features: 4 spacious bedrooms, including the owner's suite on the main level 2.5 bathrooms designed for convenience An open-concept living space, perfect for entertaining and daily life A covered patio A game room on the second floor New construction quality with modern finishes throughout Upon entering, you'll notice the home office and powder room tucked conveniently off the entry. Continue into the open common areas, including the spacious and bright family room, designated dining room, and kitchen. The kitchen offers a deluxe center island, giving you more counter space and ample cabinetry. The large family room at the rear of the home offers tall, sloped ceilings, large windows allowing for plenty of natural light, and easy access to a covered patio – perfect for entertaining. The owner’s bedroom features tall, sloped ceilings and offers plenty of natural light. The owner’s bathroom offers a spacious walk-in shower, a private water closet, a double-sink vanity, and an oversized walk-in closet. Head upstairs to find a spacious game room and full bath, which connects the three auxiliary bedrooms. The location provides excellent access to nearby parks, making it perfect for families who enjoy outdoor activities and recreation. The neighborhood setting offers a welcoming community atmosphere while maintaining convenient access to local amenities. Experience the benefits of new construction living in this well-designed home that combines functionality with style in Crowley's desirable residential setting. Contact our team to learn more about 1125 South Hill Drive or to schedule your in-person visit!