4
2
2176
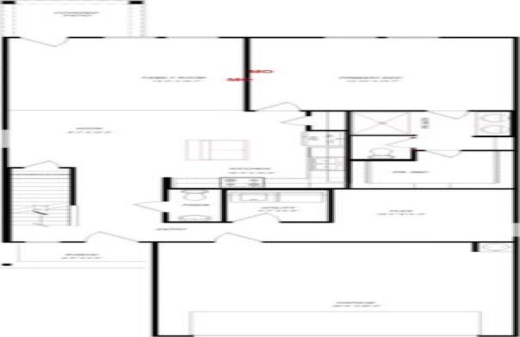
Property Description: MLS# 21118911 - Built by HistoryMaker Homes - Jan 2026 completion! ~ 4.99% FIXED RATE PLUS 15k CC PAID!!!! This is an Ellis floor plan, which includes 2,176 square feet. This is a 2 story home with four bedrooms and two and a half baths, a flex space, plus a loft space upstairs. The flex space, laundry room, and primary are all on the first level of the home. In the kitchen there will be quarts countertops,42-inch cabinets, and stainless-steel whirlpool appliances. Throughout the main areas of the home there will be luxury vinyl plank, and a carpet in the bedrooms and upstairs. The primary includes a 60 in shower, dual sinks, and a spacious walk-in closet! In the backyard you will find a covered patio with plenty of space for entertainment! Amenities include 2 pools, 2 pickleball courts, and a covered playground.