5
5
4440
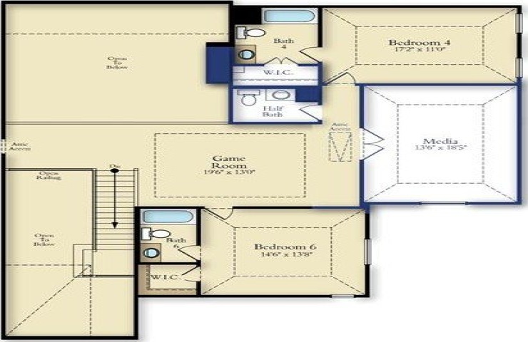
Property Description: RISLAND HOMES CATHY floor plan. Model Plan. Stunning brick and stone elevation with gorgeous cedar accents crown this one-of-a-kind gem located on a large interior lot! Huge covered front porch greets your guests with style. The grand entry boasts a stunning staircase with full iron railing open to below and hardwood stair treads and landing. Enjoy the openness of sky-high ceilings that carry from the front door to the back patio! Hardwood floors throughout the common first floor areas. Get down to business in the first-floor study with glass French doors. The huge Chef's and Morning Kitchen with second sink offers endless inspiration for the inner chef in you to create delicious memories and host fabulous dinner parties around the massive waterfall island! This home’s Chef’s Kitchen includes upgraded KitchenAid Stainless Steel appliances, pot filler, farmhouse sink, and matching 42 inch built-in Fridge – with cabinets to the ceiling with upper lighted glass doors. Get cozy in the two-story Family Room, with fireplace and eight-foot telescoping sliding glass doors opening to the covered patio, for lounging and backyard BBQ’s on this oversized lot. Reenergize mind, body, and soul in the Owner's retreat, one of three ensuite bedrooms downstairs, with a spa-like experience in the super shower with rainfall and regular showerheads. Dress up or down for your day in the oversized walk-in closet! Head upstairs to enjoy a movie night or game night with family and friends or host a Superbowl party in the media room! Guests may comfortably retire to either of the 2 ensuite bedrooms upstairs with walk-in closets. Home is pre-wired for all the tech! The three-car garage includes EV outlet to keep charged up! New Prosper ISD Elementary school located within the community! Enjoy amenities with clubhouse, infinity pool, work out room, yoga lawn, playground, pond and walking trails.